"Lo Studio del Medico "
operazione immobiliare conclusa
"Lo Studio del Medico "
operazione immobiliare conclusa
Lo Studio Medico in uno Splendido Appartamento
Lo Studio Medico in uno Splendido Appartamento
Trasformare uno studio medico posizionato in ottima zona di Milano, in uno splendido appartamento.
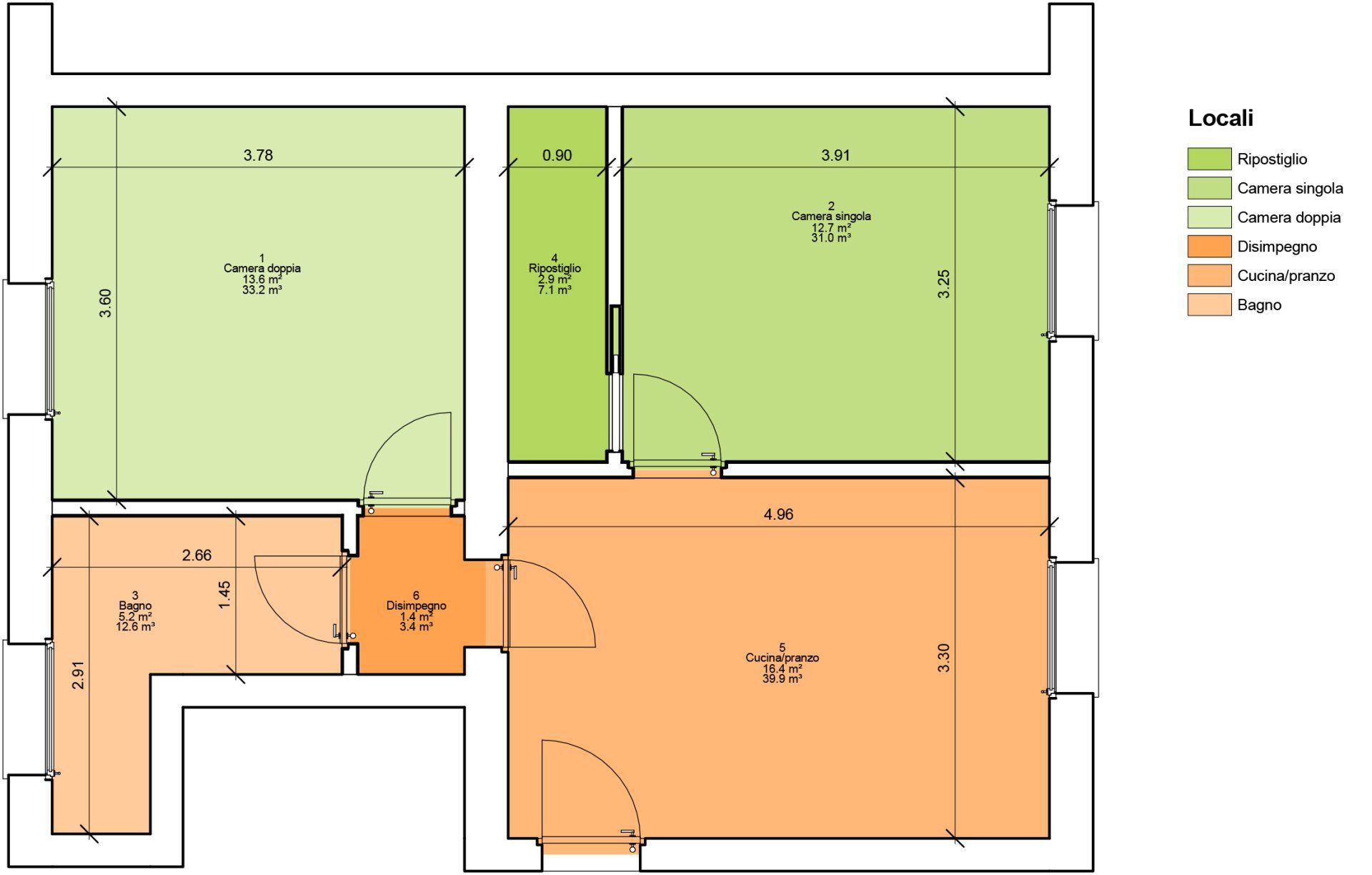
I lavori di ristrutturazione sono consistiti in una ristrutturazione completa con rimodulazione interna dell'immobile da parte dei nostri designer; ottimizzando gli spazi per uso abitativo e realizzando un soggiorno angolo cottura due camere bagno e ripostiglio, con la conseguente variazione tecnico- catastale da ufficio /studio medico ad appartamento di civile abitazione.
Gli Investitori visto il risultato finale, la posizione e le potenzialità dell' appartamento hanno concordemente deciso di non procedere alla rivendita dell'immobile , ma di locarlo.
L'affitto è avvenuta in brevissimo tempo con un conduttore referenziato e con un importante rendimento.







